- Woonoppervlakte
- Circa 114 m²
- Perceeloppervlakte
- Circa 97 m²
- Bouwjaar
- Gebouwd in 1986
- Aantal kamers
- 5 kamers (3 slaapkamers)
## HOUSE FOR SALE - ENGLISH BELOW ##
A’dam Good Story presenteert, met trots, de Lambert Rimastraat 58.
Locatie, Locatie, Locatie ... direct aan de Gaasperplas en rondom in de natuur in een buurtje waar je met open armen wordt ontvangen.
Keurige eengezinswoning in een autoluwe wijk, met 2 dakkapellen, eeuwigdurende ERFPACHT AFGEKOCHT en energielabel A!
Bel ons voor een bezichtigingsaanvraag.
De woning beschikt over de volgende kenmerken, te weten;
• Eengezinswoning met hout elementen,
• 114m2 woongenot met ruimte voor uitbreiding,
• Uitgebouwde woning met schuifpui aan de tuinzijde,
• 43m2 achtertuin op het zuiden,
• 3 woonlagen met 3 slaapkamers en een ruime zolder met mogelijkheden,
• Bovenste etage heeft 2 dakkapellen voor optimaal gebruik,
• Autoluwe wijk met voldoende parkeergelegenheid,
• Op loopafstand van metrohalte Gein,
• (Kind)vriendelijke buurt,
• Erfpacht eeuwigdurend,
• Energielabel A, 8 zonnepanelen, extra vloerisolatie zodat de luchtverwarming vanuit de vloer en de elektrische vloerverwarming van de keuken goed rendement leveren,
• Notariskeuze aan koper mits in Amsterdam.
Gein-3 is een sfeervolle kindvriendelijke woonwijk. Het "Gein3dorp", ligt aan de rand van het beschermd natuurgebied De Gaasperzoom en op 500m van de Gaasperplas met strand, park en Ballorig.
Heerlijk ontspannend is een rondje plas (4.5 km) wandelen, joggen, zeilen, surfen, super, BBQ-en en nog veel meer ...
Midden in de woonwijk ligt de bassischool en kinderopvang.
Met de metro lijn 54 of 53) de stad in, winkelcentra (Gein of Reigersbos) om de hoek.
Binnenkomen in deze woning is thuiskomen.
Overzichtelijk, zonnig en uitnodigend zijn zomaar wat termen die je te binnen schieten wanneer je de woning binnenkomt.
Riant verdeeld over DRIE woonlagen, dat biedt veel mogelijkheden!
Een heerlijke woonkamer met schuifpui en fraai aangelegde tuin, de drie ruime slaapkamers op de eerste verdieping en op de tweede verdieping een grote slaapkamer met 2 dakkapellen en een aparte ruimte voor de wasmachine.
Bij het inrijden van de wijk ervaart u de rust terwijl u zo in het centrum van Amsterdam bent.
De wijk kenmerkt zich door het vele groen en is de verbinding tussen stad en natuur.
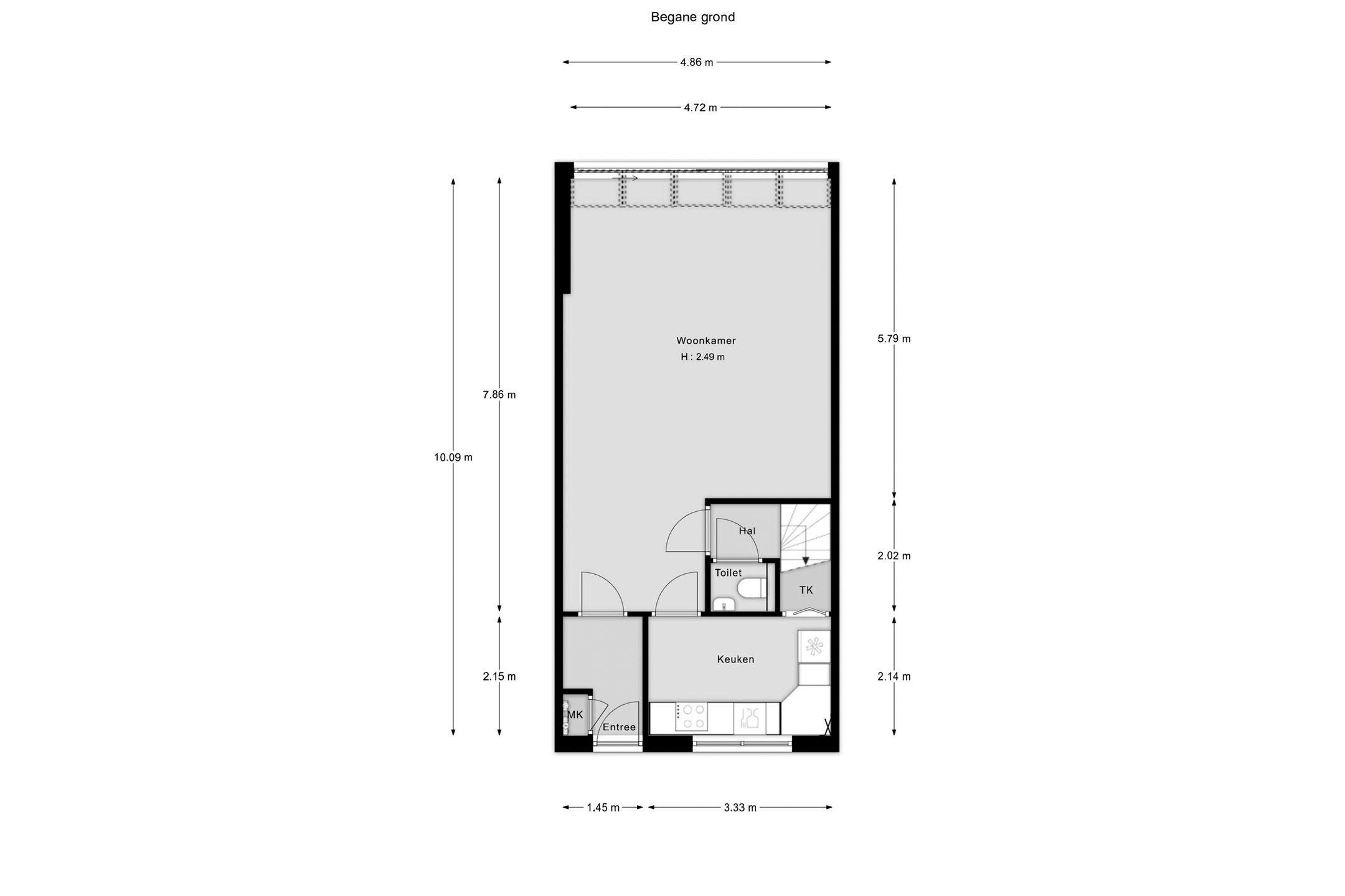
I N D E L I N G
Bij binnenkomst valt meteen het licht op en wordt u automatisch aangetrokken door de fijne lichtinval. De schuifpui nodigt uit om direct door te lopen naar de tuin, de rust en ruimte maken het aangenaam.
De keuken ligt aan de voorkant van de woning, overzichtelijk en ruimtelijk waarbij u vrij uitkijkt op de straat.
Boven bevind de master bedroom aan uw rechterzijde, ruimtelijk met voldoende kastruimte. De kamer aan de voorkant is een fijne slaapkamer welke nu in gebruik is als werk- en muziek ruimte.
De badkamer ligt links van u, praktisch ingedeeld en van alle gemakken voorzien.
Op de bovenste etage treft u de derde slaapkamer aan met twee heerlijke dakkapellen. De overloop fungeert als wasruimte wat de woning overzichtelijk houdt.
L I G G I N G
Deze woning ligt in Gein, direct aan de Gaasperplas. Aan de andere kant treft u het winkelcentrum Gein, met horeca, supermarkten en alles wat u nodig heeft.
Het Arena gebied ligt op fietsafstand, hier komt Nederland samen voor de Johan Cruijff ArenA, de Ziggo Dome, Pathé ArenA en het Afas Live theater. Kortom, genoeg uitgaansmogelijkheden.
Het Station Bijlmer ArenA verbindt je met de rest van Nederland, binnen 17 minuten op Amsterdam Centraal Station en met 20 minuten op Utrecht Centraal.
De A1, A2, A9 en A10 zijn uw directe uitvalswegen, en met de fiets zit u zo in de prachtige natuur.
Mocht dit nog niet genoeg zijn, dan heeft u legio mogelijkheden om te recreëren. Het Nelson Mandelapark met de atletiekbanen, voetbal-, hockeyvelden, het skatepark en de gigantische speeltuin voor kinderen.
Zoek ook gerust het Diemerbos op of de Gaasperplas waar u kunt surfen/zeilen, lekker frisbeeën en barbecueën, laat de zomer maar komen!
C O N C L U S I E
Keurige, instapklare woning. Hoogste tijd om van de lente te komen genieten!
I N T E R E S S E
Bel dan A’dam Good Story voor een bezichtiging.
Tel. 06-403404037
Bij A’dam Good Story hebben wij het vermogen de juiste scène te creeeren voor de aan- en verkoop van uw woning. Onze Antroposofische makelaar zet uw woning in het juiste licht met behulp van natuurlijke styling, professionele fotografie en een meeslepende tekst. Onze bezichtigingen zijn een unieke beleving begeleid met de juiste catering en sfeervolle muziek.
Deze informatie is door ons met zorgvuldigheid samengesteld. Onzerzijds wordt echter geen enkele aansprakelijkheid aanvaard voor enige onvolledigheid, onjuistheid of anderszins, dan wel de gevolgen daarvan.
## ENGLISH TEXT ##
A’dam Good Story proudly presents 58 Lambert Rimastraat.
Location, location, location... right on the Gaasperplas and surrounded by nature in a neighborhood where you’ll be welcomed with open arms.
A neat single-family home in a low-traffic neighborhood, featuring 2 dormer windows, a perpetual ground lease that has been bought out, and an energy label A!
Call us to schedule a viewing.
The home features the following characteristics, namely:
• Single-family home with wood accents,
• 114 m² of living space with room for expansion,
• Extended home with sliding glass doors on the garden side,
• 43 m² south-facing backyard,
• 3 floors with 3 bedrooms and a spacious attic with potential,
• Top floor has 2 dormer windows for optimal use,
• Low-traffic neighborhood with ample parking,
• Within walking distance of the Gein metro stop,
• (Child) friendly neighborhood,
• Perpetual ground lease,
• Energy label A, 8 solar panels, extra floor insulation so that the underfloor air heating and the electric floor heating in the kitchen provide good efficiency,
• Choice of notary for the buyer, provided they are based in Amsterdam.
Gein-3 is a charming, child-friendly residential neighborhood. The “Gein3dorp” is located on the edge of the De Gaasperzoom nature reserve and just 500 meters from the Gaasperplas lake, which features a beach, a park, and Ballorig.
It’s wonderfully relaxing to take a walk (4.5 km) around the lake, go jogging, sailing, surfing, swimming, have a BBQ, and much more...
The elementary school and daycare center are located right in the middle of the neighborhood.
Take metro line 54 or 53 into the city; shopping centers (Gein or Reigersbos) are just around the corner.
Stepping into this home feels like coming home.
Spacious, sunny, and inviting are just a few words that come to mind when you enter the home.
Spacious and spread over THREE floors, offering plenty of possibilities!
A lovely living room with sliding glass doors and a beautifully landscaped garden, three spacious bedrooms on the first floor, and on the second floor a large bedroom with two dormer windows and a separate laundry room.
As you drive into the neighborhood, you’ll experience the tranquility, yet you’re just a short distance from the center of Amsterdam.
The neighborhood is characterized by its abundance of greenery and serves as a bridge between the city and nature.
LAYOUT
Upon entering, the light immediately catches your eye, and you’re automatically drawn to the pleasant natural light. The sliding glass doors invite you to step right out into the garden, where the tranquility and space create a welcoming atmosphere.
The kitchen is located at the front of the home, well-organized and spacious, offering an unobstructed view of the street.
Upstairs, the master bedroom is on your right, spacious with ample closet space. The room at the front is a lovely bedroom currently used as a home office and music room.
The bathroom is on your left, practically laid out and fully equipped.
On the top floor, you’ll find the third bedroom with two lovely dormer windows. The landing serves as a laundry area, which keeps the home organized.
LOCATION
This home is located in Gein, right on the shores of the Gaasperplas. On the other side, you’ll find the Gein shopping center, featuring restaurants, supermarkets, and everything you need.
The Arena district is within cycling distance; this is where the Netherlands comes together for the Johan Cruijff ArenA, the Ziggo Dome, Pathé ArenA, and the Afas Live theater. In short, plenty of entertainment options.
The Bijlmer ArenA Station connects you to the rest of the Netherlands, with Amsterdam Central Station just 17 minutes away and Utrecht Central Station 20 minutes away.
The A1, A2, A9, and A10 are your direct access roads, and by bike you’re in the beautiful countryside in no time.
If that’s not enough, there are countless recreational options. The Nelson Mandela Park features track and field facilities, soccer and hockey fields, a skate park, and a massive playground for children.
Feel free to visit the Diemerbos or the Gaasperplas, where you can surf or sail, play Frisbee, and have a barbecue—bring on the summer!
C O N C L U S I O N
A neat, move-in-ready home. It’s the perfect time to come and enjoy the spring!
I N T E R E S T
Call A’dam Good Story to schedule a viewing.
Tel. 06-403404037
At A'dam Good Story, we have the ability to create the right scene for the purchase and sale of your home. Our anthroposophical real estate agent will show your home in the best light with the help of natural styling, professional photography, and compelling text. Our viewings are a unique experience accompanied by the right catering and atmospheric music.
We have compiled this information with care. However, we accept no liability whatsoever for any incompleteness, inaccuracy, or other errors, or for the consequences thereof. Lees de volledige omschrijving
Overdracht
- Vraagprijs
- € 500.000 k.k.
- Status
- Verkocht onder voorbehoud
- Aanvaarding
- In overleg
Bouw
- Object type
- Eengezinswoning, tussenwoning (hofjeswoning)
- Soort bouw
- Bestaande bouw
- Bouwjaar
- 1986
- Soort dak
- Samengesteld dak bedekt met bitumineuze dakbedekking en pannen
Oppervlakte en inhoud
- Woonoppervlakte
- 114 m²
- Perceeloppervlakte
- 97 m²
- Inhoud
- 276 m³
- Externe bergruimte
- 6 m²
- Gebouwgeb. buitenruimte
- 41 m²
Indeling
- Aantal kamers
- 5 kamers (3 slaapkamers)
- Aantal badkamers
- 1 badkamer en 1 apart toilet
- Badkamervoorzieningen
- Douche, inloopdouche, toilet, en wastafelmeubel
- Aantal woonlagen
- 3 woonlagen
- Voorzieningen
- Alarminstallatie, buitenzonwering, glasvezelkabel, mechanische ventilatie, natuurlijke ventilatie, schuifpui, TV kabel, en zonnepanelen
Energie
- Energielabel
- A
- Energielabel registratie
- 17-02-2026
- Isolatie
- Volledig geïsoleerd
- Verwarming
- Cv-ketel, heteluchtverwarming en gedeeltelijke vloerverwarming
- Warm water
- Cv-ketel
- Cv ketel
- Intergas extreme 36 (gas gestookt combiketel uit 2022, eigendom)
Buitenruimte
- Ligging
- Aan bosrand, aan park, aan rustige weg, aan water, beschutte ligging, buiten bebouwde kom en in woonwijk
- Tuin
- Achtertuin
- Afmetingen achtertuin
- 43 m² (8,50 meter diep en 5,00 meter breed)
- ligging tuin
- Gelegen op het zuiden bereikbaar via achterom
Bergruimte
- Schuur / berging
- Vrijstaande houten berging
- Voorzieningen
- Elektra en stromend water
Parkeergelegenheid
- Soort parkeergelegenheid
- Betaald parkeren, openbaar parkeren en parkeervergunningen
Energieverbruik in Amsterdam
Energielabel deze woning
Energielabel A
Publicatie energielabel: 17-02-2026
Stroomverbruik per jaar
(Gemiddelde tussenwoning in Amsterdam)
Gasverbruik per jaar
(Gemiddelde tussenwoning in Amsterdam)
* Cijfers zijn afkomstig van het CBS en bedoeld als indicatie en kunnen verschillen voor deze woning
Indicatie hypotheeklasten
Eigen inleg:
Spaargeld / overwaarde
Rente:
Laagste 10-jaars rente
Laagste 10-jaars rente
2,78% - Centraal Beheer - NHG
3,04% - Centraal Beheer - 80%
Laagste 20-jaars rente
3,29% - Centraal Beheer - NHG
3,52% - Centraal Beheer - 80%
Laagste 30-jaars rente
3,41% - Centraal Beheer - NHG
3,7% - Argenta - 80%
Hypotheek:
Bruto maandlasten: € 0 p/m
Netto maandlasten: € 0 p/m
Hoe berekenen we dit?
Het rentepercentage is gebaseerd op de laagste 10 jaars vaste rente voor één hypotheekdeel. De vermelde rente (3.04% zonder NHG) is gecontroleerd op 15-05-2026. Deze berekening is gebaseerd op een annuïteitenhypotheek die volledig wordt afgelost, waarbij de maandlasten gedurende de gehele looptijd gelijk blijven. De werkelijke rente en netto maandlasten kunnen variëren, afhankelijk van uw persoonlijke situatie en de hypotheekverstrekker. Raadpleeg een financieel adviseur voor een nauwkeurige berekening en advies. Aan deze berekening kunnen geen rechten worden ontleend; het dient enkel als indicatie.
Documentatie
Kadastrale kaart
Leefomgeving
Plattegronden PDF
WOZ waarderapport
BAG uittreksel
Brochure
Bezichtiging
Bod uitbrengen
Waardebepaling
Zoekopdracht
Alles downloaden
Zonnegrenzen bekijken
Op de kaart
Inwoners in Amsterdam
Cijfers voor postcodegebied 1106
- Totaal aantal inwoners
- 18080 inwoners
- Mannen
- 48%
- Vrouwen
- 52%
Inwoners in Amsterdam
Cijfers voor postcodegebied 1106
- tot 15 jaar
- 17%
- 15 tot 25 jaar
- 13%
- 25 tot 35 jaar
- 25%
- 45 tot 65 jaar
- 28%
- 65 en ouder
- 16%
Huishoudens in Amsterdam
Cijfers voor postcodegebied 1106
- Eenpersoons zonder kinderen
- 48%
- Meerpersoons zonder kinderen
- 17%
- Huishoudens zonder kinderen
- 65%
Huishoudens in Amsterdam
Cijfers voor postcodegebied 1106
- Huishoudens met één kind
- 19%
- Huishoudens met meerdere kinderen
- 16%
- Huishoudens met kinderen
- 35%
Woningen in Amsterdam
Cijfers voor postcodegebied 1106
- Woningen voor 1945
- 1%
- Woningen tussen 1945 en 1965
- 1%
- Woningen tussen 1965 en 1975
- 1%
- Woningen tussen 1975 en 1985
- 75%
- Woningen tussen 1985 en 1995
- 23%
Woningen in Amsterdam
Cijfers voor postcodegebied 1106
- Woningen tussen 1995 en 2005
- 1%
- Woningen tussen 2005 en 2015
- 1%
- Woningen na 2015
- 1%
- Huurwoningen
- 70%
- Koopwoningen
- 30%
Overige in Amsterdam
Cijfers voor postcodegebied 1106
- Gemiddelde WOZ waarde
- € 252.000,-
- Personen onder de 65 met uitkering
- 14%
Overige in Amsterdam
Cijfers voor postcodegebied 1106
- Adressen per km²
- 2418
- Stedelijkheid (schaal 1 op 5)
- 80%
Korte feiten over Amsterdam
Amsterdam is de hoofdstad van Nederland. De stad, in het Amsterdams ook Mokum genoemd (afkomstig uit het Jiddisch), ligt in de provincie Noord-Holland, aan het IJ, het Noordzeekanaal en de monding van de Amstel. De stad ligt in de gelijknamige gemeente Amsterdam en heeft 873.338 inwoners (1 januari 2021), Groot-Amsterdam telt 1.459.402 inwoners.
A'dam Good Story.com
Indien u vragen heeft of u wilt een bezichtiging inplannen, dan kunt u gebruik maken van het formulier hiernaast. Er zal daarna op korte termijn contact met u worden opgenomen.
Claus van Amsbergstraat 38
1102AZ, Amsterdam
06 - 4034 0437 amsterdam@adamgoodstory.com www.adamgoodstory.comContact opnemen
A'dam Good Story
Nieuwste reviews
-
Robert Fruinlaan 19 2
We hadden een super fijne samenwerking met Joek. Hij heeft ons vanaf het begin tot het einde goed begeleid en was altijd bereikbaar voor vra...
-
Belle and The Beats
Super goede ervaring met veel aandacht en altijd goed bereikbaar. Ik raad de service van Joek en zijn team zeker aan.
-
Sajjad Mousavi
Ik was erg te spreken over de professionele manier van werken van mijn makelaar en zijn constante bereikbaarheid, zelfs in het weekend. Hij...